The Yellowstone Retreat Barndominium House Kit
The Yellowstone Retreat Barndominium House Kit is backordered and will ship as soon as it is back in stock.
Couldn't load pickup availability
Delivery and Shipping
Delivery and Shipping
Add some general information about your delivery and shipping policies.
Amish Handmade Furniture
All of our furniture has had been made by geniune expert amish craftsmen.
Description
Description
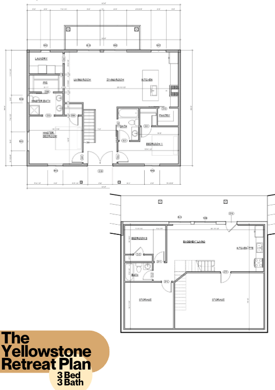
### What's Included in a Barndominium House Kit?
When you purchase a barndominium house kit, you receive:
- **26-gauge metal exterior shell** (no windows or doors included)
- **26-gauge metal roof**
- **Engineered blueprints and floor plans** up to code for your state and county, ready for your general contractor
- **Installation of the shell** on your foundation
Please note that **site preparation** such as dirt work, land prep, septic systems, electrical, and plumbing are not included in this package. The price strictly covers the metal shell, blueprints, and installation of the shell.
We proudly offer this barndo house kit with **shipping and installation across all 50 states**. If you have any questions or are ready to place an order, feel free to contact us at **502-298-8946**. Due to high demand, current turnaround times are approximately **12 to 16 weeks**.
**Porches are not included** in the base price but are available upon request. If you're interested in adding a porch, simply ask your sales representative for pricing details when you call.
Payment & Security
Payment methods
Your payment information is processed securely. We do not store credit card details nor have access to your credit card information.

